Weiter zur Navigation Weiter zum Inhalt

Stadt Memmingen:Vor dem Bürgerentscheid

Kopfbild Herbst

Das Projekt in Kürze

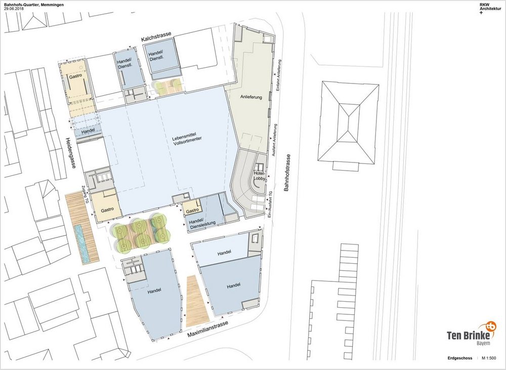
Das Areal zwischen Bahnhofstraße, Kalchstraße, Heidengasse und Maximilianstraße ist teils marode, teils mit langjährigen Baulücken versehen und muss grundlegend saniert werden. Der Stadtrat hat sich dazu entschlossen, dies über einen privaten Investor zu lösen, der die Planungs-, Realisierungs- und Erschließungskosten komplett übernimmt. Das über 7.000 Quadratmeter große Viertel soll zukünftig vielfältig genutzt werden und als attraktiver Zugang zur Altstadt dienen. 

Im Februar hat sich der Stadtrat für die Pläne des niederländischen Investors Ten Brinke entschieden. Allerdings wurden zu diesem Entwurf noch weitere Änderungswünsche im Detail geäußert, die von Ten Brinke in die Pläne eingearbeitet wurden. In der Sitzung des Stadtrats am 11. Juni 2018, wurde für das sogenannte Bahnhofsareal der Aufstellungsbeschluss für einen vorhabenbezogenen Bebauungsplan gefasst.

Nach der Abstimmung über das Bürgerbegehren sowie das Ratsbegehren, wurde die Planung mit dem Investor Ten Brinke für das gesamte Areal gestoppt.

Bürgerentscheid im Mai 2019

Nachdem die Bürgerinnen und Bürger Memmingens am Sonntag, 26. Mai 2019, über das Bürgerbegehren sowie das Ratsbegehren abgestimmt hatten, wurde die Planung mit dem Investor Ten Brinke für das gesamte Areal gestoppt. Bei der Stichfrage entfielen über 60 % der Stimmen auf das Bürgerbegehren. Somit musste ein gänzlich neues Verfahren für das Areal, das zwischen Kalchstraße, Heidengasse, Maximilianstraße und Bahnhofstraße liegt, gefunden werden um die Bürgerschaft zur Mitgestaltung der zukünftigen Bebauung ein zu beziehen. Neben den derzeitigen Grundstückseigentümern werden auch externe Experten in das neue Verfahren miteingebunden.

Chronologie und Sachstandsbericht Dezember 2018

Grundlage für die Planung war unter anderem ein externes Gutachten zum Einzelhandel in Memmingen. Am 30. Juli 2014 gab es eine erste Bürgerinformation zur Neugestaltung des Areals in der Stadthalle.

Die Auslobung des Investorenwettbewerbs erfolgte dann in der öffentlichen Stadtratssitzung am 6. Oktober 2014.

Das Auswahlgremium, bestehend aus Oberbürgermeister Manfred Schilder, Bürgermeister Dr. Hans-Martin Steiger, Stadtrat Christoph Baur, Stadtrat Helmut Börner, Stadtrat Wolfgang Courage, Stadtrat Stefan Gutermann, Stadtrat Michael Hartge, Stadtrat Matthias Reßler, Stadtrat Karl Standhartinger, Stadträtin Corinna Steiger, Thomas Munding, Vorstandsvorsitzender der Sparkasse Memmingen - Lindau - Mindelheim, Albert Wenninger von der Memminger Wohnungsbau eG und Roland Reischmann als beratendes Mitglied, trafen sich danach für mehrere Sitzungen die jeweils von einem externen Profi moderiert werden. Aus den acht eingereichten Entwürfen, kamen drei in die engere Wahl.

Die einstimmige Empfehlung des Auswahlgremiums fiel dann im Januar 2018 auf den Entwurf des Investors Ten Brinke.

In der öffentlichen Stadtratssitzung wurde der Entwurf am 5. Februar 2018 mit großer Mehrheit angenommen.

Danach wurde der Aufstellungsbeschluss für die Durchführung des vorhabenbezogenen Bebauungsplans einstimmig auf der öffentlichen Sitzung des Stadtrats am 11. Juni 2018 verabschiedet.

Die Pläne wurden außerdem bei der Bürgerversammlung in der Stadthalle präsentiert und beim Stand des Stadtplanungsamtes detailliert anhand eines Models und Zeichnungen vorgestellt.

Es wurden Gutachten zum Immissionsschutz und zu Erschütterungen des Bahnverkehrs erstellt sowie die Detailplanung zur Erschließung und der Anlieferung. Dies erfolgte in enger Abstimmung mit dem Denkmalschutz. Der Bebauungsplan wurde samt Vorhaben- und Erschließungsplänen ausgearbeitet. Dabei haben sich folgende Zahlen verändert:

Bürgerversammlung

Letzter Stand

Investitionsvolumen

ca. 45 Mio €

 

Flächen Einzelhandel

ca. 4.500 m2

 

Flächen Büro/Dienstleistungen

ca. 3.200 m2

ca. 1.625 m2

Flächen Wohnen

ca. 2.500 m2

ca. 3.750 m2

Flächen Hotel

ca. 3000 m2

ca. 2.800 m2

Flächen Gastronomie

ca. 250 m2

ca. 320 m2

Anzahl TG Stellplätze

ca. 328 Stück

 

Die nächsten Schritte wären gewesen:

Billigungsbeschluss des Bebauungsplan-Entwurfs mit den Vorhaben und Erschließungsplänen im II. Senat Anfang 2019. Danach sollte der Bebauungsplan öffentlich ausgelegt werden. Zusätzlich hätte es in dieser Zeit eine Informationsveranstaltung mit der Verwaltung und dem Investor gegeben. Der Satzungsbeschluss zum Bebauungsplan sollte dann Mitte 2019 gefasst werden.

Ansichten Bahnhofsareal - Entwürfe

Die Vorgeschichte

Bereits seit dem Jahr 2010 wurde aktiv über eine Sanierung oder Neugestaltung des vernachlässigten Areals zwischen Maximilianstraße, Heidengasse, Kalchstraße und Bahnhofstraße diskutiert. Ziel war es ein völlig neu gestaltetes Quartier mit einer Nutzungsmischung aus Wohnen, Handel, Dienstleistungen, Gastronomie und öffentlichem Raum als attraktiven Zugang zur Altstadt zu schaffen. Das insgesamt 7.672 m² große Viertel ist größtenteils in städtischer Hand bzw. Eigentum der Memminger Wohnungsbau eG. Um die Kosten eines solchen Bauprojekts zu stemmen, favorisierte man die Beauftragung eines privaten Investors im Rahmen eines offenen Investoren-Wettbewerb.

Nachdem der Stadtrat im Oktober 2013 beschlossen hatte die Bürgerschaft und die Geschäftswelt bei der Vorbereitung des Wettbewerbs miteinzubeziehen, fand im Juli 2014 eine Informationsveranstaltung hierzu in der Stadthalle statt. Interessierte Einwohner informierten sich über den Stand des Verfahrens sowie die Vorbereitung und Durchführung des Investorenwettbewerbs. Außerdem bestand die Möglichkeit zur Diskussion mit den anwesenden Fachleuten. Im Oktober 2014 beschloss der Stadtrat schließlich über die Besetzung des Auswahlgremiums, die prozentuale Gewichtung der Bewertungskriterien sowie den Auslobungstext für den Wettbewerb. Letzterer wurde am 12.12.2014 im Bayerischen Staatsanzeiger und in der Memminger Zeitung veröffentlicht.

Rahmenziele und Anforderungen des Stadtrats

Der Stadtrat formulierte vorab Anforderungen und Rahmenziele an die Neubebauung des Areals:

  • Attraktiver Stadteingang mit Wegebeziehungen zur Altstadt
  • Belebung des Quartiers und des gesamten Umfeldes
  • Hochwertige und offene Architektur
  • Konformität mit dem Altstadtentwicklungskonzept
  • Auslegung der Quartiersentwicklung und des Nutzungskonzepts auf eine langfristige und nachhaltige Entwicklung
  • Einhaltung der baurechtlichen Rahmenbedingungen und Beachtung des Denkmalschutzes
  • Attraktiver Nutzungsmix aus Wohnen, Handel, Gastronomie und öffentlichen Räumen (geschlossenes Einkaufszentrum wird nicht favorisiert)
  • Abstimmung Nutzungsmix auf die innerstädtische Nutzung
  • Stärkung der Wohnfunktion in der Innenstadt
  • Flexibilität der Immobilienstruktur
  • Erschließung des Grundstücks (Stellplätze, Verkehrsanbindung usw.)

Bewertungsmatrix

Auf Basis der formulierten Rahmenziele wurde eine Bewertungsmatrix erstellt, auf Grundlage derer die Bewertung der eingereichten Angebote erfolgte.

Architektur/städtebauliches Konzept             35%
Nutzung (Nutzungsmix usw.)                       15%
Verkehr (Wegebeziehungen, Erschließung)    15%
Wirtschaftlichkeit (Preis)                              35%

Die Benotung der einzelnen Kriterien erfolgte mit den Noten 5 (sehr gut) bis 0 (Anforderungen werden nicht erfüllt).

Auswahlgremium

Die Mitglieder des Entscheidungsgremiums für die Investorenauswahl zur städtebaulichen Neuordnung des Bahnhofareals waren:

Oberbürgermeister Dr. Ivo Holzinger, Bürgermeister Werner Häring, Stadtrat Christoph Baur, Stadtrat Helmut Börner, Stadtrat Wolfgang Courage, Stadtrat Stefan Gutermann, Stadtrat Michael Hartge, Stadtrat Matthias Reßler, Stadtrat Karl Standhartinger, Stadträtin Corinna Steiger, Thomas Munding, Vorstandsvorsitzender der Sparkasse Memmingen - Lindau - Mindelheim, Albert Wenninger, Memminger Wohnungsbau eG und Roland Reischmann, beratend.

Investorenauswahlverfahren

Bis Februar 2015 gingen insgesamt acht Angebote von Investoren bei der Stadt Memmingen ein. In seiner ersten Sitzung am 18.03.2018 beschloss das Auswahlgremium, dass alle eingereichten Teilnehmeranträge weiter im Verfahren bleiben. In seiner zweiten Sitzung verringerte das Gremium die Zahl der potenziellen Investoren auf sechs, in seiner dritten Sitzung schließlich auf drei. Nachdem die verbliebenen Interessenten ihre Planungskonzepte nochmals überarbeitet und ein Kaufpreisangebot abgegeben hatten, stellten sich die drei Anbieter in einer vierten Sitzung des Auswahlgremiums selbst vor. Nach den anschließenden Gesprächen im April und Mai 2017 zum Fortgang des Verfahrens, zog am 05.05.2017 einer der drei Bieter sein Angebot zurück. Mit den verbleibenden zwei Interessenten, der Ten Brinke Group mit Sitz im niederländischen Varsseveld und der Activ-Group aus Schemmerhofen im Landkreis Biberach, wurde vereinbart, dass diese ein Modell ihres Projektentwurfs sowie ergänzende Unterlagen einreichen würden.

Bewertung der beiden Angebote

Unter Berücksichtigung der beschlossenen Bewertungskriterien ergaben sich insgesamt folgende Punktzahlen:

Bieter                        Punktzahl

Activ                            2,82
Ten Brinke                    4,15

Ausschlaggebend für den großen Punkteunterschied war vor allem, dass sich der geplante Entwurf der Firma Activ-Immobilien GmbH & Co. KG unzureichend in die bereits bestehende Gebäudelandschaft einfügte und sich somit in Teilen störend auf das Stadtbild auswirken würde. Ebenfalls kritisiert wurde der Mangel an attraktiven Platzräumen mit Aufenthaltsqualität. Positiv bewertet wurden hingegen die ausgewogene Aufteilung der Nutzung von Handel, Dienstleistung, Hotel und Wohnen, sowie die Planung von insgesamt 66 Wohneinheiten, was einem Flächenanteil von ca. 20% entspricht.

Die Ten Brinke-Projektentwicklungs-GmbH ging hierbei lediglich von 9 Wohneinheiten aus, konnte aber im Bereich „Städtebauliches Konzept“ punkten, welches „stimmig Struktur und Gefüge der Denkmalensembles ergänzt“. Ebenso wurden die hohe Aufenthaltsqualität des zentralen Platzbereichs und das öffentliche Wegenetz mit Anbindung an Heidengasse, Bahnhofstraße und Maximilianstraße gelobt.

Beschluss

Da zunächst noch nicht absehbar ist, inwieweit die Bieter die Verträge in der vorliegenden Version akzeptieren, wurde vorgeschlagen in einem weiteren Schritt den Bieter auszuwählen, mit dem in detaillierte Verhandlungen eingetreten wird.

In einer Sitzung des Auswahlgremiums am 23.01.2018 wurde der Vorschlag von Ten Brinke einstimmig zur Beschlussfassung empfohlen. In einer öffentlichen Klausursitzung am 5. Februar 2018 entschied sich der Stadtrat schließlich mit fünf Gegenstimmen für den Entwurf von Ten Brinke. Aufgrund des mangelnden Wohnraums im von Ten Brinke vorgelegten Entwurf hatte die Fraktion der ÖDP gegen das Konzept gestimmt. Der Stadtrat formulierte bei dieser Sitzung jedoch noch einige Verbesserungen am Konzept. Diese wurden wie folgt umgesetzt. 

  • Der Baukörper an der Bahnhofstraße wird aufgelockert, der Sockel besser herausgearbeitet sowie der Hotelzugang deutlich abgesetzt. Auf den turmartigen Anbau in Richtung Kalchstraße wird verzichtet.
  • Die Rosengasse wird nicht parallel gestaltet, sondern weitet sich in Richtung Bahnhof von fünf auf sechs Meter auf.
  • Die Giebelfassade zum Platz an der Rosengasse des Gebäudes Haldergasse/Maximilianstraße wurde nun mit zwei Giebeln weniger wuchtig gestaltet.
  • Der Anteil der Wohnflächen wurde von 9 Wohneinheiten (auf circa 960 m²) auf 28 bis 39 Wohneinheiten (auf ungefähr 3.300 m²) erhöht.
  • Das Gebäude nördlich des Platzes an der Rosengasse wurde um ein Geschoss erhöht.